Ajuntament de l’Olleria, 19 de diciembre de 2017
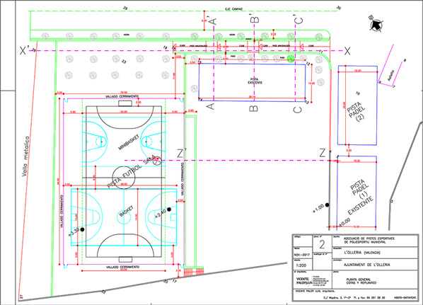
El Ayuntamiento de l’Olleria recibirá 150.000€ a través del Pla SOM de obras y servicios. Un dinero que se invertirán, como ha anunciado el Alcalde de l’Olleria, Julià Engo en mejorar las instalaciones deportivas “ vamos a construir una segunda pista de padel, para poder dar solución a la gran demanda que hay y una pista multideportiva al aire libre donde se podrá jugar a fútbol y baloncesto. Desde que se construyó la piscina y el pabellón nos quedamos sin pista al aire libre, y la gente lo demanda. A pesar de que desde hace más de un año, un día a la semana se abren las pistas del CEIP Isabel la Católica, no es suficiente”.
Por otro lado, y dentro del Plan de inversiones financieramente sostenible, el Ayuntamiento de l’Olleria recibirá otros 100.000€, la mitad de los cuales se invertirá en re asfaltar algunas calles del casco antiguo y del Ensanche más deteriorados. Otros 30.000€ servirán para la adecuación a la legislación vigente en climatización y energía eléctrica de algunos edificios municipales como por ejemplo el Teatro Goya, el Mercado Municipal, la Escoleta, etc, y los 10.000 € restantes para acabar unas obras en el Salido que han destrozado por actos vandálicos. “Estamos ante unas inversiones importantes, que llegarán a l’Olleria en 2018 gracias a la Diputación y que abarcan un amplio abanico de actuaciones que realmente hacen falta”, concluye Engo.
____________________________
L’Ajuntament de l’Olleria rebrà 150.000€ a través del Pla SOM d’obres i serveis. Uns diners que s’invertiran, com a anunciat l’Alcalde de l’Olleria, Julià Engo en millorar les instal·lacions esportives “ anem a construir una segona pista de pàdel, per poder donar solució a la gran demanda que hi ha i una pista multiesportiva a l’aire lliure on es podrà jugar a futbol i bàsquet. Des que es va construir la piscina i el pavelló ens vàrem quedar sense pista a l’aire lliure, i la gent ho demanda. Tot i que des de fa més d’un any, un dia a la setmana s’obrin les pistes del CEIP Isabel la Catòlica, no és suficient”.
D’altra banda, i dins del Pla d’inversions financerament sostenible, l’Ajuntament de l’Olleria rebrà altres 100.000€, la meitat dels quals s’invertirà en re asfaltar alguns carrers del casc antic i de l’Eixample més deteriorats. Altres 30.000€ serviran per a l’adequació a la legislació vigent en climatització i energia elèctrica d’alguns edificis municipals com ara el Teatre Goya, el Mercat Municipal, l’Escoleta, etc, i els 10.000 € restants per a acabar unes obres en el Salido que han destrossat per actes vandàlics. “Estem davant d’unes inversions importants, que arribaran a l’Olleria en 2018 gràcies a la Diputació i que abarquen un ampli ventall d’actuacions que realment fan falta”, conclou Engo.





Farmacia Guardia
Mapas






